2021년 8월 6일 이후 건축허가/대수선허가 신청 또는 건축신고 시, 반드시 품질인정제품 방화셔터를 사용해야 합니다.
미성기업은 2023년 1월 10일 품질인정서를 취득(미성 FS-01)하였으며, 이는 전국에서 손꼽히는 인정 업체 중 하나입니다.
한국건설기술연구원(KICT) 품질인정서를 취득한 최고급 방화셔터
| 구분 | 재질/규격 | 기준(KS) | 비고 |
|---|---|---|---|
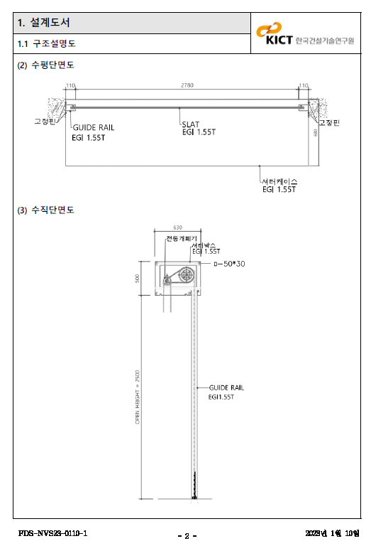
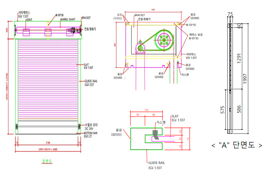
| 슬랫(Slat) | 전기아연도금강판 SECC 1.55 ㎜ | KS D 3528 | 메인차폐판 |
| 윈드락 | 전기아연도금강판 SECC 1.15 ㎜ | KS D 3528 | 슬랫 연결부 |
| 가이드레일 | 전기아연도금강판 SECC 1.55 ㎜ | KS D 3528 | 좌우 안내 |
| 연기차단재 고정판 | 전기아연도금강판 SECC 1.55 ㎜ | KS D 3528 | PVC 개스킷 GS#536 |
| 셔터케이스 | 전기아연도금강판 SECC 1.55 ㎜ | KS D 3528 | 50×30×1.4 ㎜ 보강관 |
| 샤프트 | 일반구조용탄소강관 SGT275 | KS D 3566 | 114.3×2.0 ㎜, 양단 베어링지지 |
| 브라켓 | 320×540×3.2 ㎜ | - | B/K-300 – 전동개폐기 지지 |
| 전동개폐기 | KST-300 (300 kg, 200 kg W) | - | 자동제어형 |
| 하단 마감재 | 전기아연도금강판 SECC 1.55 ㎜ | KS D 3528 | 개스킷 GS#536 부착 |
더 자세한 내용을 보시려면 각 항목을 클릭하세요.
이미지를 클릭하면 크게 보실 수 있습니다.





이미지를 클릭하면 크게 보실 수 있습니다.








투시성과 방화성능을 동시에 만족하는 고급형 방화셔터
스크린 방화셔터는 특수 내화 섬유(주로 실리카 소재)로 제작되어, 기존 철재 방화셔터의 단점을 보완한 경량형 방화 셔터입니다. 특히 설치가 쉽고, 다양한 공간과 형태에도 적용이 유연하며, 화재 발생 시 연기와 열 감지기에 연동되어 자동으로 작동합니다. 화재 확산을 신속히 차단하고, 다양한 형태의 건물과 공간에서도 유연하게 적용 가능한 현대적 방화 솔루션입니다.
| 구분 | 기능명 | 핵심 내용 |
|---|---|---|
| 1 | 방화 기능 | 비차열 60분 내화성능 확보 (KS F 2268-1 기준) |
| 2 | 차연 기능 | 연기 차단 성능 확보 (공기 누설량 0.9 이하, KS F 2846 기준) |
| 3 | 자동 개폐 기능 | 화재감지기 및 연동 제어기를 통한 자동 폐쇄 및 수동 개방 가능 |
| 4 | 차염 기능 | 화염이 10초 이상 지속되지 않도록 차염 구조 구현 |
| 5 | 내충격 기능 | 충격 시에도 25mm 균열게이지 관통 방지, 구조 안전성 유지 |
| 6 | 안전제어 기능 | 개폐 속도 자동 조절, 상·하부 자동정지, 임의 위치 정지 가능 |
| 7 | 연동제어 기능 | 화재경보·소방설비와 연동되어 비상 시 자동 작동 |
| 8 | 내식·내열성 기능 | 유리섬유 및 아라미드 재질을 사용해 열·습기에 강함 |
| 9 | 유지관리 용이성 | 점검구 설치 및 전동개폐기 위치 확인이 용이한 구조 |
미성기업의 스크린 방화셔터(S-01)는 엄격한 심사를 거쳐 비차열 60분 내화성능을 공식적으로 인정받았습니다.
이미지를 클릭하면 크게 보실 수 있습니다.




| 구성부 | 재질 및 규격 | 특징 |
|---|---|---|
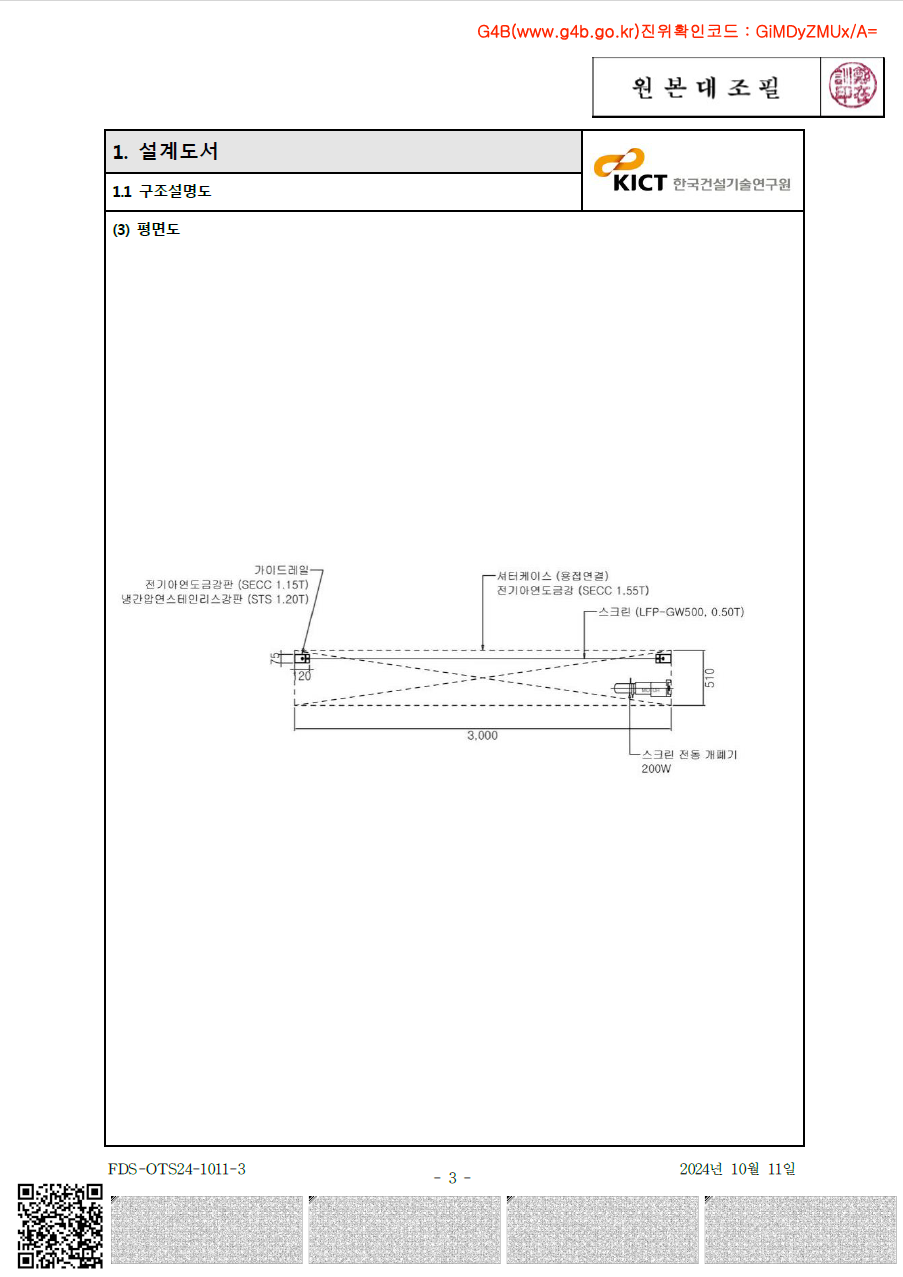
| 셔터커튼 (스크린) | 유리섬유직물(LFP-GW500), 두께 0.50㎜ | SiO₂ 56.5% 함유, 내열성 우수 |
| 재봉사 | 1500D 아라미드 + SSW 12EA (두께 0.3㎜) | 고강도 내열 재봉사 |
| 가이드레일 | 아연도금강판(SECC 1.15㎜) + 스테인리스(STS304 1.2㎜) | 내식성 및 구조강도 확보 |
| 셔터케이스 | 아연도금강판(SECC 1.55㎜) | 상부 설치용 케이스 |
| 샤프트(감기축) | 일반 구조용 탄소강관 (SGT275, Ø114.3×2.0㎜) | 스크린 권취용 |
| 전동개폐기 | 300kg, 200W (모델명 KST-300S) | 자동 작동 장치 |
| 하단마감재 | 아연도금강판 + STS304, 두께 1.15~1.2㎜ | 하단부 평형 유지용 중량 보강 |
| 연기차단재 | 유리섬유 가스켓(0.45㎜, 너비 80㎜) | 연기 차단 및 밀폐성 확보 |
더 자세한 내용을 보시려면 각 항목을 클릭하세요.
| 항목 | 기준 및 시험방법 | 주기 |
|---|---|---|
| 외관 | 이물질·불순물 없음, 절곡선 일직선 | 1회/LOT |
| 치수 | ±10㎜ 이내 | 1회/LOT |
| 비차열 성능 | 60분 이상 (KS F 2268-1) | 5년 1회 또는 발주처 요구 시 |
| 차연성능 | 공기 누설량 0.9 이하 (KS F 2846) | 공인시험기관 |
| 개폐성능 | 평균속도 2.5~6.5m/min | 공인시험기관 |
| 내충격성 | 6㎜ 균열게이지 150㎜ 미이동 | KS L 2006 기준 |
이미지를 클릭하면 크게 보실 수 있습니다.






2023년 경기주택도시공사(GH) 민간협력기술개발사업 선정 (총 1억원 개발비 지원)
1년간의 시제품 제작과 혹독한 화재 실증 테스트를 거쳐 개발된, 국내 유일의 전기차 화재 전용 차수막 복합 방화셔터입니다.
슬라트, 차수막, 셔터케이스, 가이드레일 등 각 부품별 실제 제원을 적용하여 3M x 3M 크기의 시제품을 제작. 특히 수밀성과 내수압 유지를 위한 차수막 재질의 강성을 집중적으로 검토하였습니다.








실제 전기차 배터리가 내장된 차량을 대상으로 차수막복합방화셔터를 설치한 후 화재 유발 시험을 진행하였습니다. 소화전 살수를 통해 전기차 배터리가 물에 잠기는 효과(수조 효과)를 검증하였으며, 이는 국내 최초의 실증 실험입니다.
"화재 발생 373초 만에 전기차 배터리 살수액 잠김 효과 발생 → 1차, 2차 화재 진압 성공"



차수막복합방화셔터 작동 시 연기 및 화염 확산 차단 효과 시뮬레이션 결과입니다.




아연도금강판을 사용한 고강도 방범셔터로 외부 침입을 완벽하게 차단합니다.




통풍과 시야 확보가 동시에 가능한 기능성 타공 방범셔터입니다.




고급스러운 미관과 뛰어난 내구성을 자랑하는 프리미엄 스테인리스 파이프 셔터입니다.
※ 종류: 단중 파이프셔터, 이중파이프 셔터, 웨이브 셔터 등 다양한 디자인 선택 가능












가볍고 내구성이 뛰어난 알루미늄 소재의 실용적인 셔터입니다.





두 개의 알루미늄 층으로 이루어져 내구성과 기능성이 한층 강화된 프리미엄 셔터입니다.
※ 주요 종류: 비단열/단열 이중압출A/L 셔터, 내풍압/내풍압 단열 이중압출A/L 셔터, 투명렉산/폴리카보네이트 셔터