기술력

최첨단 설비와 독보적인 기술력으로 최상의 품질을 약속합니다.

보유설비

5M V-컷팅기

5M V-컷팅기

  • 유압클램프 시스템을 통해 강력한 클램핑과 작업최대속도 보장
  • ±0.1mm/meter을 유지하여 최고의 정밀도가 가능
  • 모니터를 통해 진행되고 있는 작업공정을 확인하기에 불량없는 최상의 품질 보장
  • 볼 스크류와 LM GUIDE를 통한 작업을 통한 정밀도 우수

5M 샤링기

5M 샤링기

  • 정확한 절단계획을 통하여 불필요한 로스(Loss) 방지
  • 뒤틀림방지장치를 활용하여 고정밀도를 자랑하는 최상품질 납품 가능
  • 체계적인 생산라인으로 빠른 시간 안에 제품 제작 가능
  • 고품질의 브랜드 원판을 사용

5M 절곡기

5M 절곡기

  • 면적, 중량, 공정, 수량 등을 분석하는 가격선정프로그램을 통해 항상 일관적인 가격 제시
  • 최첨단 대형절곡기 도입으로 다양한 양질의 제품 생산
  • 금속판 FRAME의 변형이 극소화되는 절곡기 사용
  • 특수시스템 적용으로 좌, 우, 수평, 각도 등 절곡치수 완벽 관리

레이저

레이저

  • 고객 일정에 문제가 생기지 않도록 생산계획을 통한 체계적인 납기 보장
  • 정확한 작업계획(Cutting Plan)을 통하여 불필요한 로스(Loss) 방지
  • 최대의 SPEED와 가공범위를 갖춘 고출력 레이저로 생산력 향상
  • 최첨단 장비를 통한 작업으로 버(Burr) 제거 및 2차 가공 불필요

제작공정

완벽을 향한 미성기업의 제작 공정을 영상으로 확인하세요.

1. 롤포밍기 스라트 제작
2. 샤링기 & 코너샤링기
3. 절곡기 & V 커팅기
4. V 커팅기 바이트 교체
5. 방화셔터 부품 제작
6. 방화셔터 현장설치 영상 (전과정)

품질인정 제품 (KICT 인증)

한국건설기술연구원장(KICT)이 성능을 인정한 방화셔터 제품 (미성 FS-01)

이미지를 클릭하면 인증서를 크게 보실 수 있습니다.

방화셔터 인정서 1
방화셔터 인정서 2
방화셔터 인정서 3
방화셔터 인정서 4

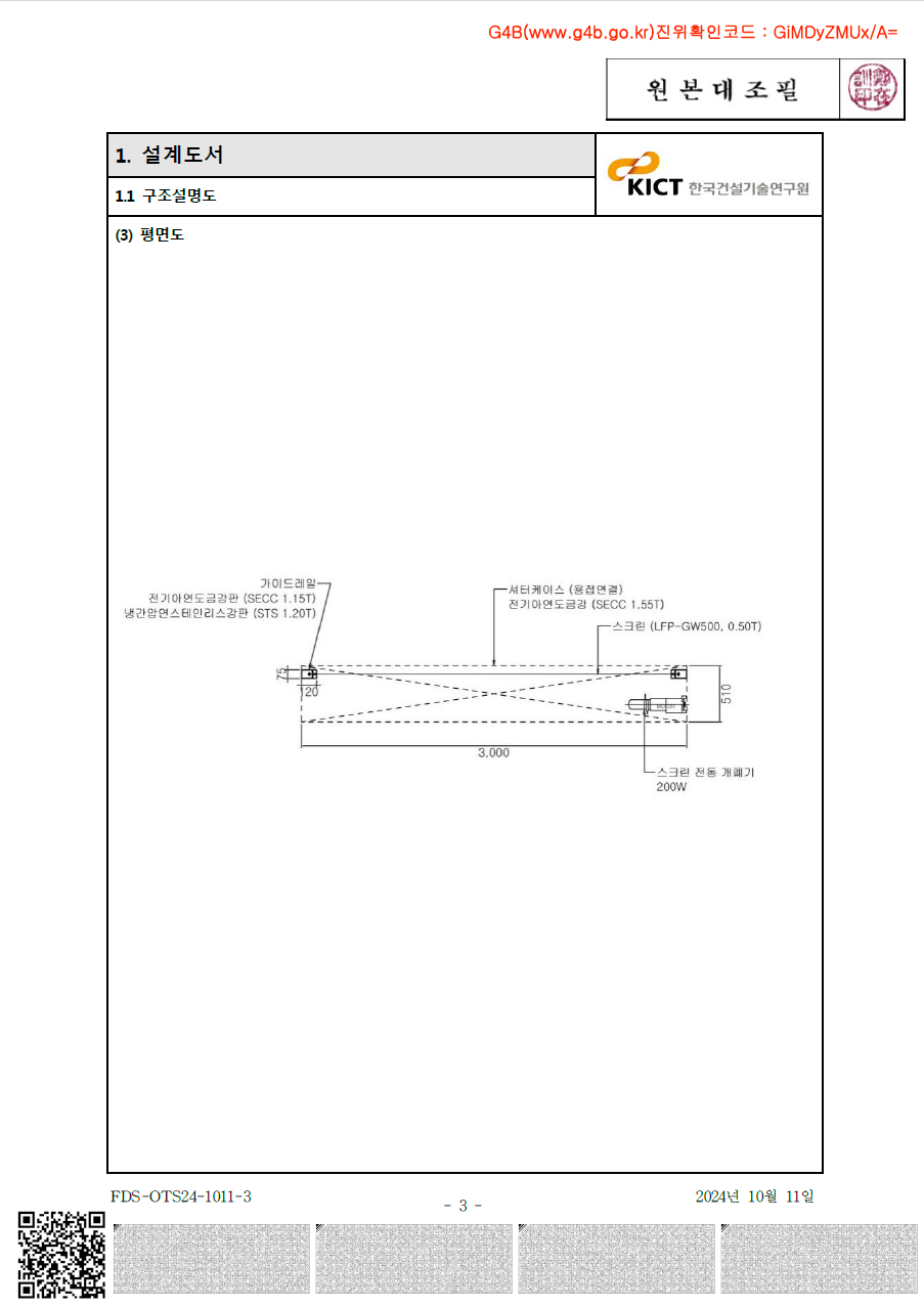
한국건설기술연구원장(KICT) 인정 스크린방화셔터 제품 (2024.10.11)

이미지를 클릭하면 인증서를 크게 보실 수 있습니다.

스크린방화셔터 인정서 1
스크린방화셔터 인정서 2
스크린방화셔터 인정서 3
스크린방화셔터 인정서 4